(11)3090-3202

Elaboração de Projeto

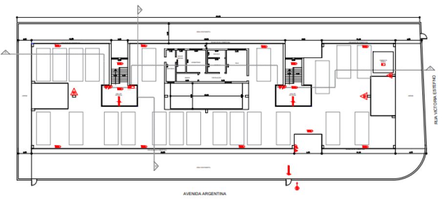
A elaboração de projetos técnicos de prevenção e combate a incêndio é uma das etapas cruciais para garantir a segurança de qualquer edificação. Esses projetos visam planejar e implementar medidas eficazes para arquitetura de incêndio, minimizando riscos para vidas humanas, patrimônios e o meio ambiente.

Pesquisa de Projeto

Quando ocorre o dano ou até mesmo a perca da Via original do Projeto Técnico que já foi aprovado pelo Corpo de Bombeiros conseguimos efetuar a pesquisa diretamente na Via Fácil.

Renovação AVCB

O Auto de Vistoria do Corpo de Bombeiros (AVCB) é uma licença emitida pelo CBPMESP (Corpo de Bombeiros da Polícia Militar do Estado de São Paulo) que tem como finalidade assegurar que o local a ser licenciado atenda todas as condições necessárias e obrigatórias de segurança contra incêndio e pânico e sua renovação se faz em até 5 anos. Decreto 63.911/2018

FAT – Formulário de Atendimento Técnico

É um instrumento administrativo utilizado para sanar dúvidas técnicas relacionadas ao Projeto, solicitar alterações de dados no processo ou em Licenças emitidas pelo Corpo de Bombeiros (AVCB e CLCB), juntada de documentos, reconsiderações de ato em vistoria, entre outros.

ARTS

A ART é o documento que define, para os efeitos legais, os responsáveis técnicos pelo desenvolvimento de atividade técnica no âmbito das profissões abrangidas pelo Sistema Crea., Renovação Anual conforme Lei Federal n.º 6496/1977.

Brigada de Incêndio

Brigada de Incêndio são grupos de pessoas previamente treinadas, organizadas e capacitadas dentro de uma organização, empresa ou estabelecimento para realizar atendimento em situações de emergência e o prazo de Renovação e anual de acordo com a Norma IT/17.

Abrir bate-papo
VERNOVO REFORMAS
Olá
Podemos ajudá-lo?